
Kod Arkitekter . photos: © Måns Berg . + dezeen
Liden’s new fire station is a long-awaited resource for strengthened rescue preparedness, increased safety, and access to rapid interventions in rural areas. It houses vehicles and equipment capable of handling forest fires and difficult terrain. A good and attractive working environment, both in everyday life and in times of crisis, has been the goal of the project. Knowledge and training, routines and flows, as well as materials and conditions change working methods, which in turn results in healthier firefighters over time
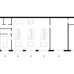
The station is dimensioned for 24 part-time firefighters and has an engine bay with three parking spaces, a washing bay, and a smaller workshop. The turnout gear room and showers are located adjacent to the bay. On the second floor, there is a gym, office spaces, and premises for socializing and training. The facilities are also used as a workplace for part-time firefighters on call, and as meeting and training rooms for the rescue service.
The building is situated on a slope where Road 86 follows the Indalsälven valley, and is traditionally placed along the side of the valley due to the steep incline. The site was chosen based on its location by the road, for smooth emergency exits, and its proximity to the village where the part-time firefighters who must be able to arrive quickly live. The station is a major investment and an important building for the local community. The design of the rescue station is based on it being a clearly visible public building placed in relation to the landscape and the cultural environment.
The architecture is simple and consistent with few materials and colors. Large-scale in its meeting with the valley, smaller and more carefully crafted in its meeting with the human scale. The lower level is by necessity built of concrete, and everything above that is built of wood. The engine bay’s need for ceiling height, the ground’s elevation and slope, and the possibility of access from both the south and north resulted in a single volume in a walk-out basement (suterräng) design. The view is fantastic, and by turning the roof and opening the building toward the valley, it is fully utilized—the fact that you can see straight through the building into the landscape, and from the engine bay to the staff areas, are details that make the building generous and welcoming.
The building derives its character from the high glulam beams that span the entire engine bay and also support the overhanging roof, sun shading, and balcony. Falu red paint covers all the exterior wood. Materials and colors recur internally with polished concrete floors, red cabinets and stairs, and plywood on the walls. The outdoor environment is functionally raw, with asphalt meeting the tall grass of the old field, providing space for snow storage, turning radiuses, slopes, and the placement of containers.·
_
Lidens nya brandstation är en efterlängtad resurs för stärkt räddningsberedskap, ökad trygghet och tillgång till snabba insatser i glesbygd. Här finns fordon och utrustning med förmåga att hantera skogsbränder och svår terräng. En god och attraktiv arbetsmiljö både i vardag och i kris har varit målet för projektet. Kunskap och utbildning, rutiner och flöden samt material och förutsättningar förändrar arbetssätt och det resulterar i sin tur i friskare brandmän över tid. Stationen är dimensionerad för 24 deltidsbrandmän och har en vagnhall med tre uppställningsplatser, en tvätthall samt en mindre verkstad. Larmställsrum och dusch ligger intill hallen. På andra våningen finns gym, kontorsplatser och lokaler för samvaro och utbildning. Lokalerna används också som arbetsplats för deltidsbrandmän som har beredskap och som mötes- och utbildningslokaler för räddningstjänsten. Byggnaden ligger i en sluttning där väg 86 följer Indalsälvens dalgång, och är traditionsenligt placerad längs dalsidan, eftersom lutningen är brant. Tomten var vald utifrån läget vid vägen, för smidig utryckning, och nära byn, där deltidsbrandmännen som snabbt ska kunna infinna sig bor. Stationen är en stor satsning och en viktig byggnad för lokalsamhället. Gestaltningen av räddningsstationen utgår från att det ska vara en väl synlig offentlig byggnad placerad i relation till landskapet och kulturmiljön. Arkitekturen är enkel och konsekvent med få material och kulörer. Storskalig i mötet med dalgången, mindre och mer omsorgsfullt bearbetad i mötet med människan. Det nedre planet är av nödvändighet byggt i betong och allt ovan det är byggt i trä. Vagnhallens behov av takhöjd, markens höjd och lutning, möjlighet att angöra både från söder och norr gav en hel volym i suterräng. Utsikten är fantastisk och genom att vända taket och öppna byggnaden mot dalen tas den tillvara – att man ser rakt igenom byggnaden ut i landskapet och från vagnhall till personaldelarna är detaljer som gör byggnaden generös och välkomnande. Byggnaden får sin karaktär av de höga limträbalkar som bär över hela vagnhallen och även bär det utskjutande taket, solavskärmning och balkong. Falurödfärgen täcker allt trä exteriört. Material och kulörer återkommer interiört med rena betonggolv, röda skåp och trappor och plywood på väggarna. Utemiljön är funktionellt rå, med asfalt som möter den gamla åkerns höga gräs och har plats för snöupplag, vändradier, lutningar och uppställning av containrar.




























