
Initially, the house was designed for no one and therefore for ‘everyone’. A property
developer commissioned the project on a plot on the edge of the city of Vila do Conde and was going to sell it, house or project, to a final buyer. A certain universality was the basic criteria of the request: social spaces connected to the kitchen, a block of 4 bedrooms (one of which could be transformed into an office), segregated service spaces (garage, machine rooms, storage rooms) and very basic materials/colours/textures.
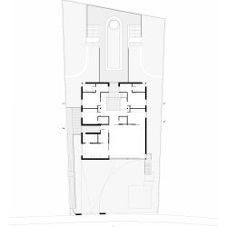
For this porpuse two ‘projects’ were combined with the modes of today and here: (1) the
floor plan of the Casa Sul Mare di Sicilia by Lina Bo Bardi and Carlo Pagani, not at all unfamiliar typologically to the Domus Romana, and (2) the Corbusian domino, extreme in the cut that raises the piano nobile of the Casa, ‘increasing’ the size of a not very extensive suburban plot.
The methods: against the concrete domino we set, on the upper floor, an ETICS façade with an entablature under which we fenestrated the volume on all four sides.
The exception was the entrance that cuts through the entablature. The aluminium window frames are exposed in natural colour, as is the wood plywood and marble inside.
_
Architect – ATELIERDACOSTA
Team – Diogo Silva, Ricardo Nunes, Hugo Barros, Pedro Matos
Construction – José Manuel A. Ferreira, Lda
Area – 649,50 m2
Location – Póvoa de Varzim, Portugal
Year – 2015 – 2021
Client – Private
Photography – Tiago Casanova
Text – Hugo Barros
Inicialmente a casa foi projectada para ninguém e, por isso, para “todos”: um promotor imobiliário encomendou o projecto num loteamento à margem da cidade de Vila do Conde e deveria vendê-la, casa ou projecto, a um comprador final. Uma certa universalidade era o critério base do pedido: espaços sociais ligados à cozinha, um bloco de 4 quartos, sendo um deles transformável em escritório, espaços de serviço segregados (garagem, casas de máquinas, arrecadações) e materiais/cores/texturas de grande elementaridade. Nesse intento, juntaram-se dois “projectos” com os modos de hoje e daqui: a planta da Casa Sul Mare di Sicilia de Lina Bo Bardi e Carlo Pagani, nada estranha tipologicamente à Domus Romana, e o dominó corbusiano, extremado no corte que eleva o piano nobile da Casa, “aumentando” o terreno de um lote suburbano não muito extenso. Os modos: ao dominó de betão justapusemos, no piso superior, uma fachada de ETICS com um entablamento, sob o qual fenestrámos o volume nos seus 4 lados. A excepção reservou-se para a entrada que corta esse entablamento. As caixilharias de alumínio são expostas à cor natural, assim como o contraplacado de madeira e o mármore no interior.






















