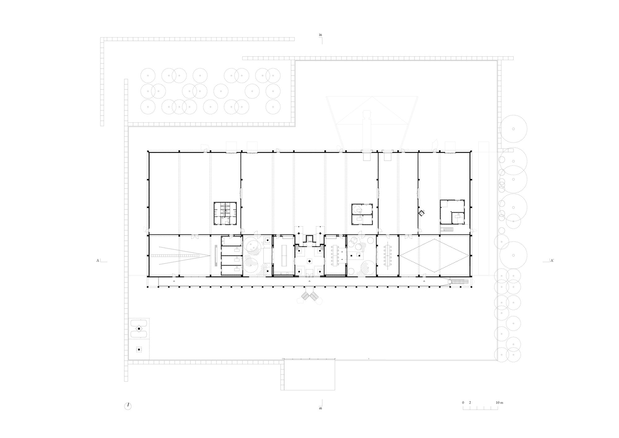
Nuno Melo Sousa . Corcet Headquarters . Penafiel Federico Farinatti afasia (41)